available
add to favourites
Description
Commercial Unit Available – Commercial Buildings, St Helier
A substantial and versatile commercial premises extending to 13,744 sq. ft in total, suitable for a range of retail, trade counter, storage, distribution or light industrial uses.
Property Overview
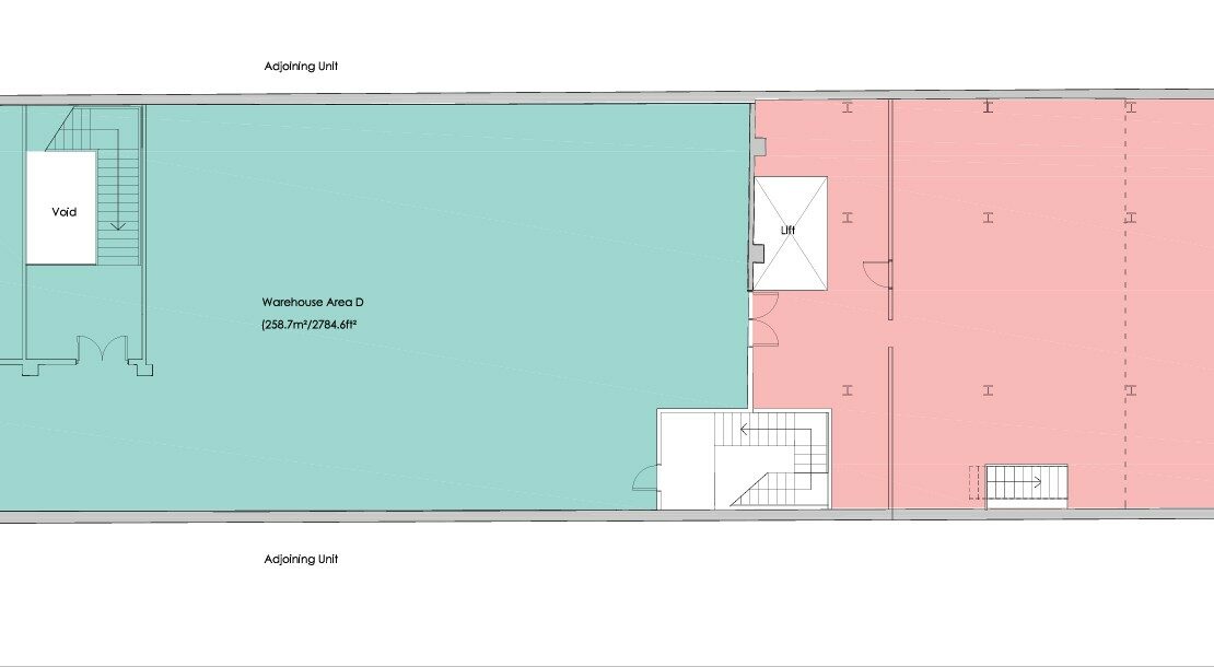
Total Area: 13,744 sq. ft
Front Shop / Warehouse: 12,273 sq. ft
Office Accommodation: 1,471 sq. ft
Key Features
Prominent front shop/trade counter area
Extensive warehouse space with flexible layout
Dedicated office accommodation
Suitable for retail, trade, storage or distribution use
Excellent operational flow between shop, warehouse and office areas
Generous floor space offering strong commercial potential
This well-proportioned unit provides a practical combination of customer-facing retail space, substantial warehouse capacity, and integrated office facilities — ideal for growing businesses seeking a highly functional commercial environment.
For full internal specifications and to arrange a viewing, please contact the Property Team on 01534 734200
Address: 20 Commercial Buildings
City: St Helier
State/County: Jersey
Postcode: JE2 3NB
Country: Jersey
Open In Google Maps Property Id : 28698
Property Size: 13.744 ft2
Property Lot Size: 13.744 ft2
Property Type: retail unit
Storage
Negotiable FRI lease
Prime location
Nearby parking
On site parking available
WC facilities
Contact Me
Schedule a showing?














